الحيوطية (جامع-)
حيوطيه (جامع)
-
الحيوطية
الحيوطية (جامع -)
يقع جامع الحيوطية في مدينة دمشق خارج أسوارها الغربية في منطقة السويقة، إلى الشمال من مشفى المجتهد الذي يفصله عنه عرض الشارع، وقد سميت الجادة باسم الجامع بعد تحريفها من الحيوطية إلى الحيواطية، والتي كانت تعرف بالسابق ببستان الصاحب، وقد سجلت أوصافه العقارية الأولى: جامع بناؤه من حجر وخشب، وتبلغ مساحته نحو ٢٧٠ متراً مربعاً، وقد صنفه العلبي في «خطط دمشق» ضمن المساجد الجامعة.
![]() | ![]() |
وهو من مشيّدات الفترة المملوكية، إذ يعود تاريخ بنائه إلى سنة ٨٨٥ هـ /١٤٨٠م. أما الباني فهو الأمير مكي بن حيوط (أحد أمراء دمشق) مع ورود اسم الباني في بعض المصادر (علي بن حيوط)، وقال ابن طولون في «مفاكهة الخلان»: «إنه في يوم الجمعة ثاني عشر جمادى الأولى سنة ٨٨٥ أقيمت الجمعة بالجامع الذي أنشأه الأمير مكي بن حيوط، قبلي محلة قبر عاتكة شرقي الشويكي، على الجانب الغربي والشمالي من بستان الصاحب(يقع جوار مصلى العيدين)، وهو جامع حسن نزه أخذه من بيته، وجعله جامعاً، ووقف عليه جهات عديدة».
للجامع واجهتان خارجيتان؛ جنوبية وغربية. أما الشمالية والشرقية فلا تظهران، الواجهة الغربية للجامع مبنية من الحجر بأسلوب الأبلق، وتُعدّ من العناصر الأصلية للجامع، وقد خضعت الواجهة الجنوبية لعملية تجديد وإعادة بناء؛ ليكون مظهرها الحالي حديثاً نسبياً، مع مراعاة الانسجام مع الواجهة الغربية، وتحتوي الواجهة الغربية على عدد من العناصر التزيينية، أولها الشريط الحجري المزرر المتناوب، الذي يعلوه بعدة مداميك شريط حجري تزييني آخر من الحنيات الضحلة، ويؤطر الواجهة من الأعلى إفريز حجري بسيط البروز، وفي الواجهة لوحتان مربعتان تزيينيتان، تعلوان المدخل (الذي يقع في الجهة الشمالية من هذه الواجهة)، العليا منها كتابية، بأسلوب الحفر تضمنت عبارة: ((لا إله إلا الله))، والسفلية منها هندسية، وتتوضع ضمن الفراغ البسيط الذي يحجزه تراجع قوس المدخل، الذي يعلو باب الجامع.
![]() | ![]() |
| منظر عام | المدخل |
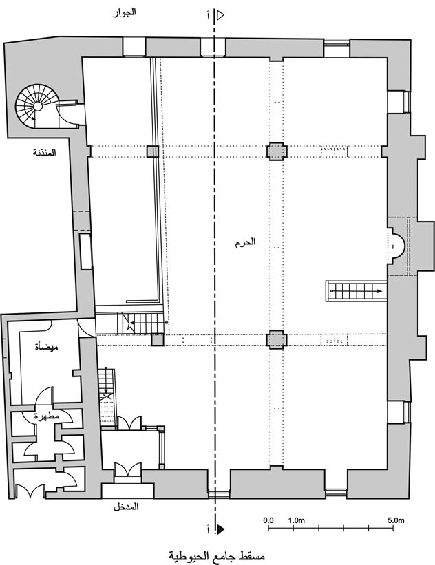
لا يحتوي الجامع على صحن، وهو يتألف من حرم قريب من المستطيل. وتتألف بنيته الإنشائية من جدران حاملة محيطية من الحجر، وأقواس حجرية داخلية تستند إلى دعائم حجرية، تقسم حرم الجامع إلى تسع وحدات فراغية، مشكلة ثلاثة مجازات متجاورة في كلا الاتجاهين، شمال جنوب، وشرق غرب، وخلافاً للمتعارف عليه في تمييز تجاه شرق غرب لمجازات الجوامع الدمشقية؛ فإن تجاه شمال جنوب لتلك المجازات أكثر وضوحاً وتمييزاً في جامع الحيوطية، وذلك لتميز البنية الإنشائية لسقف تلك المجازات، حيث يكون سقف كل من المجازين الطرفيين مستوياً تحمله جوائز خشبية دائرية المقطع، في حين يقسم سقف المجاز الوسطي قسمين: الجنوبي مشابه لسقف المجازين الطرفيين، مع ارتفاع مستواه عن مستويهما، في حين يأخذ سقف القسم الشمالي منه شكل القبوة السريرية (نصف أسطوانة)، وهذا العنصر الإنشائي من العناصر المميزة في الجامع، فنادراً ما يُلفى في مباني دمشق القديمة وخاصة الجوامع منها، وقد ذكر طلس في «ذيل ثمار المقاصد» أن تحت القنطرة العظيمة (القبوة الأسطوانية) بركة لطيفة ينزل إليها بدرجتين، ولكن لا وجود لها اليوم، وترتفع نقاط استناد القبوة عن مستوى باقي الأسقف لتتضمن في الجدران التي أوجدها فرق المستوى نوافذ مستطيلة تحقق دخول الإنارة للمنطقة الوسطية من حرم الجامع، وقد تم تدعيم هذا السقف الأسطواني وتقويته بشدادات معدنية، تخفف من القوى النابذة (قوة الرفس) عند نقاط استناد الأقواس الحاملة للقبوة إلى الجدران.
![]() | ![]() |
| الواجهة الجنوبية | الحرم |
للجامع سدة صغيرة مستحدثة تقع في الزاوية الشمالية والشرقية، ويتم الصعود إليها من درج مجاور للمدخل، وأرضية الجامع مبلطة ببلاط من الموزاييك الحديث ومغطاة بالسجاد. أما جدران الجامع فهي مكسوّة من الداخل بالكلسة البيضاء. ويطلّ الجامع على محيطه بعدة نوافذ، اثنتان في كل من الواجهتين الغربية والجنوبية، وواحدة في الواجهة الشرقية، تؤطرها المداميك الحجرية، وتعلو كلاً منها عناصر تزيينية، تحوي شريطين حجريين مزررين وشريطاً من الحنايا أو الحنيات الضحلة.
يتم الولوج إلى الميضأة من داخل الجامع عبر باب إلى يسار الداخل للحرم. أمّا المطهرة فقد أصبح يتمّ الدخول إليها من خلال باب في الجدار الغربي للميضأة. وللجامع محراب حجري مبني بأسلوب الأبلق، يتضمن عدة عناصر تزيينية كالأفاريز والإطارات الحجرية، وفيه عمودان رخاميان يعلو كلاً منهما تاجان مقرنصان من الحجر تستند إليهما طاسة المحراب، التي يعلوها أيضاً شريط حجري مزرر. أما المنبر المجاور للمحراب فهو بكامله من الخشب تزين ريشتيه وبابه زخارف هندسية، وتعلو جلسة الخطيب قبة نصف كروية متجاوزة ومحززة يتوجّها الهلال، وترتكز على سقف خشبي يؤطره إفريز من صفين من المقرنصات.
![]() | ![]() | ![]() |
| المحراب | المئذنة | المنبر |
يتم الصعود إلى المئذنة من داخل الجامع عبر باب صغير في الزاوية الشمالية الشرقية؛ بوساطة درج دائري. وهي ذات قاعدة مربعة، وجذع مثمن، مبنية من الحجر الكلسي الأصفر، يتخللها في وسطها تقريباً مدماك حجري أسود اللون، ويزين الجذع شريط زخرفي على شكل حنيات ضحلة، ويتخلل الجذع فتحة معقودة بارتفاع مدماكين شكلها مستطيل ضيق، وتبرز شرفة المؤذن المثمنة عن الجذع بمقدار بسيط تحملها أربعة صفوف من المقرنصات الغنية، ولهذه الشرفة درابزين خشبي بزخرفة نجمية مفرغة، وتغطي هذه الشرفة مظلة مثمنة أيضاً ترتكز على أعمدة خشبية في زواياها، يعلوها جوسق ثماني الأضلاع وحيد الطبقة ينتهي في أعلاه بإفريز مؤطر ذي حنيات ضحلة تزيينية، ويحمل ذروة مخروطية ذات قمّة مستوية يتوّجها الهلال.
والجدير ذكره أن تاريخ بناء المئذنة لاحق لبناء الجامع بتسع سنوات، إذ لم يكتمل بناؤها حتى سنة ٨٩٤هـ/١٤٨٩م؛ إذ إن بانيها الأول الأمير ابن حيوط قد تُوفِّي عندما ابتدأ بها، فأكملها الحاج عبد القادر بن الحلاق الأجرود، الذي كان (حريرياً) في تلك المحلة، وإن كانت حالة الجامع جيدة عموماً؛ فإن المئذنة والواجهات بحاجة لبعض أعمال الصيانة والتنظيف.
أحمد الدالي
مراجع للاستزادة:
- ابن طولون، مفاكهة الخلان في حوادث الزمان (دار الكتب العلمية، بيروت ١٩٩٨م).
- عبد القادر بدران، منادمة الأطلال ومسامرة الخيال (المجمع العربي للتأليف والدراسات والترجمة، بيروت ١٩٨٦م).
- قتيبة الشهابي،مآذن دمشق تاريخ وطراز (منشورات وزارة الثقافة، دمشق ١٩٩٣م).
- أسعد طلس، ذيل ثمار المقاصد في ذكر المساجد (مكتبة لبنان ١٩٧٥م).
- التصنيف : آثار إسلامية - المجلد : المجلد السادس، طبعة 2020، دمشق مشاركة :








